Перейти до

PON и FTTH в многоэтажных домах (практика внедрения пассивных оптических сетей)


uacity

Рекомендованные сообщения

Опубліковано: (відредаговано)

Этажная коробка предназначены для ответвления из кабеля со свободными волокнами, волокон или  модуля, обслуживающих этаж, соединения волокон кабеля с абонентскими пигтейлами в оболочке 3,0 мм, фиксации кабеля и абонентских пигтейлов, защиты места ответвления и сростков волокон. Имеют компактные размеры, могут устанавливаться непосредственно в стояках, этажных шкафах, нишах и т.п. Для ограничения доступа коробки оснащаются замком с универсальным секретом.

 

3.png.a8fd32f46f61672deff02289b92b88b4.png

2.jpg.a7eea330c65e97fadf41466427c184b3.jpg

2.png.50ae182e0485a0e4165e1cd569f331f5.png

Відредаговано uacity
  • Like 2
Ссылка на сообщение
Поделиться на других сайтах
  • 1 month later...
  • Відповіді 417
  • Створено
  • Остання відповідь

Top Posters In This Topic

Top Posters In This Topic

Popular Posts

riser.mp4

При построении сети PON или FTTH (волокно в квартиру) в многоэтажном доме обычно остро встает вопрос о центральном оптическом распределительном шкафе (ОРШ). Мы перебрали много вариантов, от примитивны

Вы же даже не попытались разобраться. Ляпнуть успели, а подумать нет. Какое отношение имеет обсуждаемый вопрос к длине улицы??? Как вы строите? Вы на районы делите? на сектора? Сколько абонентов на ра

Posted Images

Опубліковано: (відредаговано)

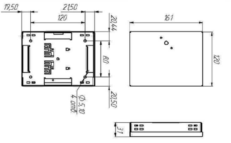
Серійне виробництво розподільчих оптичних боксів внутрішнього використання AT-IFDB-M

 

Так як в Україні ніхто так і не почав вирішувати проблему з відсутністю поверхових оптичних боксів, ми починаємо серійне виробництво поверхових боксів з пластика. Щоб отримати адекватну ціну потрібен тираж від 5 000 прим. Плануємо виготовляти два варіанти поверхових боксів і абонентську розетку. Почнемо з поверхової коробки, яку використовуємо найбільше. Якщо в кого є бажання приєднатися до нашого проекту то нижче будуть умови участі та опис оптичного розподільчого боксу.

 

Три варіанти ціни:

  1. Зелена колонка - поставка продукції на умовах передоплати, від 50 штук.
  2. Жовта колонка - поставка вже по прибуттю на склад від 100 штук
  3. Блакитна колонка - будь-яку кількість по прибуттю на склад.

image.png.37289f79968cdbacd260bb3aa38b6ffa.png

Опис розподільчого оптичного боксу внутрішнього використання AT-IFDB-M

 

Розподільчий оптичний бокс внутрішнього використання AT-IFDB-M (далі оптичний бокс) призначений для будівництва в міських багатоквартирних будинках мереж PON. Використовується спільно з міжповерховими вертикальними кабелями з волокнами вільного доступу для фіксації кабелю, відгалуження волокон, які обслуговують поверх, з'єднання волокон міжповерхового кабелю з абонентськими пігтейлами, захисту місця відгалуження і зварювання волокон. Оптичний бокс має пилозахисне виконання і компактні розміри, що дозволяє розміщувати його в стояках, поверхових шафах, нішах і т.д. Корпус з негорючого ABS - пластика. Для обмеження доступу оснащуються гвинтом-секреткою.

 

На етапі будівництва мережі прокладаються вертикальні кабелі в існуючих або в новостворених стояках без петель запасу на поверхах і без встановлення поверхових оптичних боксів. Оптичні бокси можуть бути встановлені пізніше, у міру підключення абонентів, на тих поверхах, де це необхідно.

image.png.71f07d1ebf2537ab8b6b6d7479c72755.png

image.png.653214fd31c6d4a593cba2084d14ff6d.png

image.png.3069bf12e591c29f3d967685a88ea14c.png

image.png.edafe17249a52a9745d2a99061cfc9a7.png

image.png.ff16550377208cc1668cfed4749c195a.png

image.png.92fa338d8fb407885d8ecfdd864ff32b.png

Відредаговано uacity
Ссылка на сообщение
Поделиться на других сайтах
  • 1 month later...
11 часов назад, Andy_Pigeon сказал:

ой, где-то я такую видел https://www.ssd.ru/kross-shkon-mp-2-2l5fl и  даже прикупили 

 

Вы здесь много можете увидеть продукции сделанной на базе ССД. Это вас смущает? ССД в курсе. 

Ссылка на сообщение
Поделиться на других сайтах

Ну и славно что в курсе, хорошая продукция у них., не на все только цены адекватные.

Відредаговано Andy_Pigeon
Ссылка на сообщение
Поделиться на других сайтах
  • 1 month later...

А почему в качестве распределительного кабеля рассматривается кабель со свободно извлекаемыми ОВ/ОМ только. Ведь он же практически на 50% не используется. Не думали реализовать вашу схему на вот таком вот варианте https://shop.nag.ru/catalog/01919.Opticheskij-kabel/08679.FTTx/13295.604-02-08#tech 

Плюсы:

  • цена кабеля
  • нет больших участков не задействованного в работе волокна 
  • гибкость выбора кабеля
  • в случае размещения делителей второго каскада на этажах так можно практических одним таким кабелем закрыть целый подъезд
  • выход из строя перетягивать только один этаж (вандалов в счет не берем, они могут все порезать несколько этажей подряд, у меня один раз витую пару по шинковали 10 этажей)

Минусы: 

  • больше СМР по прокладке кабеля
Ссылка на сообщение
Поделиться на других сайтах
16 часов назад, Dr_HannibalLecter сказал:

А почему в качестве распределительного кабеля рассматривается кабель со свободно извлекаемыми ОВ/ОМ только. Ведь он же практически на 50% не используется. Не думали реализовать вашу схему на вот таком вот варианте https://shop.nag.ru/catalog/01919.Opticheskij-kabel/08679.FTTx/13295.604-02-08#tech 

Плюсы:

  • цена кабеля
  • нет больших участков не задействованного в работе волокна 
  • гибкость выбора кабеля
  • в случае размещения делителей второго каскада на этажах так можно практических одним таким кабелем закрыть целый подъезд
  • выход из строя перетягивать только один этаж (вандалов в счет не берем, они могут все порезать несколько этажей подряд, у меня один раз витую пару по шинковали 10 этажей)

Минусы: 

  • больше СМР по прокладке кабеля

 

А вы реально попробуйте построить на таком кабеле,который вы указали. Посмотрите все плюсы и минусы и потом поделитесь. 

Заодно посчитайте время необходимое на прокладку, разделку и разварки. Желательно с фото.

В теме описан метод как обычно строят во всем мире. А вообще можно ж и на патчкордах построить..и в трубки задувать и на кабельных сборках..кому как хочется...

 

Когда вам нужно подключить один дом..вы еще будете возиться с разными экспериментами, а если десяток домов, да побыстрее.. а людей не 50 человек... вот тогда вы и посмотрите как люди в мире строят...

Ссылка на сообщение
Поделиться на других сайтах
47 минут назад, uacity сказал:

 

А вы реально попробуйте построить на таком кабеле,который вы указали. Посмотрите все плюсы и минусы и потом поделитесь. 

Заодно посчитайте время необходимое на прокладку, разделку и разварки. Желательно с фото.

В теме описан метод как обычно строят во всем мире. А вообще можно ж и на патчкордах построить..и в трубки задувать и на кабельных сборках..кому как хочется...

 

Когда вам нужно подключить один дом..вы еще будете возиться с разными экспериментами, а если десяток домов, да побыстрее.. а людей не 50 человек... вот тогда вы и посмотрите как люди в мире строят...

Кто на что горазд , мы к примеру вот таким (https://deepnet.ua/fifix-ftth-ud-babochka-dijelektrik.html) тягаем и не заморачиваемся, правда с поправкой у нас 3-5 этажей.  

Ссылка на сообщение
Поделиться на других сайтах
1 минуту назад, max_m сказал:

Кто на что горазд , мы к примеру вот таким (https://deepnet.ua/fifix-ftth-ud-babochka-dijelektrik.html) тягаем и не заморачиваемся, правда с поправкой у нас 3-5 этажей.  

 

Типа была витая пара, заменили ее на оптику"бабочку", в чем выиграш??? Каждый раз нужно как первый раз протягивать по всем этажам... в итоге те же жгуты кабеля, только теперь не медь, а оптика... Долго и дорого...и обслуживать трудно.

Ссылка на сообщение
Поделиться на других сайтах
Только что, uacity сказал:

 

Типа была витая пара, заменили ее на оптику"бабочку", в чем выиграш??? Каждый раз нужно как первый раз протягивать по всем этажам... в итоге те же жгуты кабеля, только теперь не медь, а оптика... Долго и дорого...и обслуживать трудно.

Зачем перетягивать ? Ремонт вообще не проблема, в чем дорого ? Обслуживать проще некуда .

Ссылка на сообщение
Поделиться на других сайтах
Только что, max_m сказал:

Зачем перетягивать ? Ремонт вообще не проблема, в чем дорого ? Обслуживать проще некуда .

 

Хорошо. Опишите как вы строите. 

 

Ссылка на сообщение
Поделиться на других сайтах

Бокс 05/24 (https://deepnet.ua/fob-05-24-naruzhnogo-primenenija.html) и стояк по этажам уже или существует или новый. С одной стороны пол патча или фаст кому как, со стороны абонента или фаст или коробочка (https://deepnet.ua/opticheskaja-rozetka-zonga-for-03.html)  . Диаметр у данного кабеля примерно в три-четыре раза меньше витухи. При обрыве свариваеш в стык обычная ffth гильза (Можно закрыть https://optikcable.ru/katalog/mufty-opticheskie-gjs/mini-mufta-ftth-i-lock-160-icsc, есть на депсе не могу найти на сайте) .    

Цена кабеля что то типа 2.20 или дешевле.

  • Like 1
Ссылка на сообщение
Поделиться на других сайтах

Бокс 05/24 можно заменить вот таким к примеру (https://deps.ua/katalog/opticheskie-boksyi/ru-nastennie-boksi-ml-v9.html) эстетичнее будет. В нашем случае не критично так как в доме есть председатель с которым оговариваеться что и где будет размещено . 

Ссылка на сообщение
Поделиться на других сайтах
24 минуты назад, max_m сказал:

Бокс 05/24 (https://deepnet.ua/fob-05-24-naruzhnogo-primenenija.html) и стояк по этажам уже или существует или новый. С одной стороны пол патча или фаст кому как, со стороны абонента или фаст или коробочка (https://deepnet.ua/opticheskaja-rozetka-zonga-for-03.html)  . Диаметр у данного кабеля примерно в три-четыре раза меньше витухи. При обрыве свариваеш в стык обычная ffth гильза (Можно закрыть https://optikcable.ru/katalog/mufty-opticheskie-gjs/mini-mufta-ftth-i-lock-160-icsc, есть на депсе не могу найти на сайте) .    

Цена кабеля что то типа 2.20 или дешевле.

 

1. Каждому абоненту отдельный кабель? 

2. В каждом подъезде коробка? 

Ссылка на сообщение
Поделиться на других сайтах

Вот еще один бокс там же https://deps.ua/katalog/opticheskie-boksyi/fob-g016-16-2-32.html

 

4 минуты назад, uacity сказал:

 

1. Каждому абоненту отдельный кабель? 

2. В каждом подъезде коробка? 

Да, а что не так? 

У нас схема позволяет перекладывать делители как угодно в пределах бюджета. 

 

Відредаговано max_m
Ссылка на сообщение
Поделиться на других сайтах

Обычно делаем так на дом волокно, а там по загруженности. у нас домов не много и этажность 2-3-5 этажей, все зависит еще от того где мы разместимся, если на чердаках то там все просто один бокс и поехали 2-3 подезда без проблем, если абонов много в подезде можем коробку развернуть внутри подезда и от туда включать . Примерно все как витухой только оптикой.   

Ссылка на сообщение
Поделиться на других сайтах

Я видел много технологий , мне конечно нравиться с трубочками и задувкой туда волокна просто красиво удобно технологично. Но не в наших реалиях, это дорого замудрено и затратно. Есть откатанная технология прокладки витой пары все используют никто не меняет хотя есть варианты (Видел пример когда один из провов от ящика  прокладывал в каждый подъезд многожилку внутри подъезда расшивал кросс и туда поключал абонов. Итог сего изврата кабель срезан кабель стоит много  абоненты пачкой в простое, в конце плюнули они на это и растянули как все витухи от коммутатора до абона каждому свое дешевле получается. ).   

С оптой тот же вариант.

Ссылка на сообщение
Поделиться на других сайтах
1 час назад, max_m сказал:

Обычно делаем так на дом волокно, а там по загруженности. у нас домов не много и этажность 2-3-5 этажей, все зависит еще от того где мы разместимся, если на чердаках то там все просто один бокс и поехали 2-3 подезда без проблем, если абонов много в подезде можем коробку развернуть внутри подезда и от туда включать . Примерно все как витухой только оптикой.   

 

Все проблемы старой технологии перебираете на себя...

Давайте сравним. Я распишу ниже как у нас происходит подключения дома, а вы по аналогии свой вариант распишите.

 

Стандартный дом 5 этажей, 4 подьезда,3 кв. на этаже (60 кв)

К примеру, подключение 50% квартир.

 

Вариант Юасити (полностью операторское решение, строится один раз, лет на 25)

 

Материалы:

  1. Коробка на дом.
  2. Кабель со свободными волокнами (16 волокон), запас больше, чем на 100% подключений – 150 метров
  3. Ответвительный бокс (ставится на этаже по факту подключения абонента (в максимальном варианте при 100 % покрытии) – 20 штук
  4. Абонентская розетка (ставится по факту включения абонента), при 50% - 30 шт.
  5. Делитель в центральной коробке (по факту) при 50% покрытии 1х32 – 1 шт

Порядок подключения дома (100% покрытие):

  1.  Установка коробки – 20 минут
  2. В каждый подъезд завели отдельный кабель со свободными волокнами с 1 по 5 этаж – около 30 – 60 минут на подъезд
  3. Сварка кроссов в коробке – 2 – 3 часа
  4. Установка делителя – 5 минут

Порядок подключения абонента (25 -60 минут):

  1. На этаже абонента надрез кабеля - 1 минута
  2. Установка ответвительного бокса – 5 минут
  3. Прокладка волокна до абонента в кембрике – 10-30 минут
  4. Установка оптической розетки и разварка волокна – 10-20 минут

Обслуживание:

  1. У всех абонентов одинаковые параметры, легко понять, где проблема.
  2. При повреждении волокна в подъезде (любая причина), есть запасные волокна, замена волокна занимает минуты, никакой беготни по этажам, крышам и т.д.
  3. При порезе кабеля между этажами, вставляется вставка между этажами и вваривается в этажные коробки (16 волокон по цветам не так и сложно сварить)

Благоустройство:

  1. Один кабель в подъезде (нет жгутов), все аккуратно
  2. Нет соплей по тех.этажам, чердакам и т.д. (легко договариваться с управдомами и ОСББ).
  • Like 4
Ссылка на сообщение
Поделиться на других сайтах

У нас нет таких объемов сравнить не как у нас общая масса абонов это частный сектор. Давайте так прикинем

1 час назад, uacity сказал:

Кабель со свободными волокнами

Он у вас проходит с первого по последний этаж , это по факту стояк как делают все только деаметром поменьше. На тот кабель что я указал вполне хватит труба 16 с надрезом на каждом этаже. 

По размещению коробки смотрим по факту или одна на весь дом, а там перемычками в соседние подъезды или вариант если плотность абонов скажем в одном из подездов достаточно высока можно развернуть коробку прямо в конкретном подезде к примеру на третьем этаже используя вместо магистрали любой из абон кабелей. Можно сразу к примеру 1й подезд 3й этаж Коробка по типу (https://deps.ua/katalog/opticheskie-boksyi/fob-g016-16-2-32.html) пришла магисталь внутри делитель на 4 за делителем 1х8 и три отвода в соседние подезды далее в каждый подезд по коробке по типу (https://deps.ua/katalog/opticheskie-boksyi/bn330-1-5.html) и делитель1х8 

1 час назад, uacity сказал:

Порядок подключения абонента (25 -60 минут):

  1. На этаже абонента надрез кабеля - 1 минута
  2. Установка ответвительного бокса – 5 минут
  3. Прокладка волокна до абонента в кембрике – 10-30 минут
  4. Установка оптической розетки и разварка волокна – 10-20 минут

По времени почти так же если убрать пункты 1,5 в нашем случае.

1. Перекур обсуждение  маршрута ввода с абонентом от 2-10мин  

2. Прокладка волокна от коробки до абонента путем протяжки по стоякам и прибития к стене (http://elektriktorg.ru/catalog/klemmy-zazhimy/stjazhka/skoba-ploskaja-8h50sht-navigator) или если есть короб укладка в короб или струна вдоль стены монтаж стяжками все зависит от того как устроен подъезд те же 10-40 мин (так как варианты бывают разные ,,, были и такие когда у абонов тамбур зашит вагонкой ).

3. Приварить пачкорд к кабелю 5 мин + 2 минуты замерить параметры и вставить в делитель.

4.  Установка оптической розетки и разварка волокна – 10-15 минут  

5. Оформить договор настроить подключение 10-15 мин.

 

 

Відредаговано max_m
Ссылка на сообщение
Поделиться на других сайтах
4 минуты назад, max_m сказал:

По размещению коробки смотрим по факту или одна на весь дом, а там перемычками в соседние подъезды или вариант если плотность абонов скажем в одном из подездов достаточно высока можно развернуть коробку прямо в конкретном подезде к примеру на третьем этаже используя вместо магистрали любой из абон кабелей. Можно сразу к примеру 1й подезд 3й этаж Коробка по типу (https://deps.ua/katalog/opticheskie-boksyi/fob-g016-16-2-32.html) пришла магисталь внутри делитель на 4 за делителем 1х8 и три отвода в соседние подезды далее в каждый подезд по коробке по типу (https://deps.ua/katalog/opticheskie-boksyi/bn330-1-5.html) и делитель1х8 

 

Могу к примеру написать в чем разница с нами...

 

Мне не нравится в вашем варианте как минимум 2 момента:

  1. Фактически каждый дом получается индивидуальный... Что б что то понять, при проблеме, необходимо точно знать в каком подьезде или коробке и какой делитель стоит... Точно знать откуда и какой абонент подключен... При повреждении волокна нужно его или вытянуть или пройти по всему маршруту и как то проверять.. исправить (заварить, доварить и т.д..) потом по новой проложить и т.д. . Это занимает много времени... Только имея точный план на руках, можно, что то решать.
  2. При повреждении между этажами жгута кабелей... решение проблемы будет в разы сложней.... учагадать по одинаковым огрызкам, что к кому идет не просто.... Сварить между собой тоже совсем не просто...

У нас же любой дом стандартный, мы используем два варианта при строительстве...

В любом доме монтажник, даже абсолютно новый сразу же сориентируется.

 


 

22 минуты назад, max_m сказал:

3. Приварить пачкорд к кабелю 5 мин + 2 минуты замерить параметры и вставить в делитель.

 

Вы используете кабель и с обеих сторон привариваете патчкорды или напрямую привариваете к делителям?
Можно попросить вас выложить фотографии коробки, что б хоть абонентов 10 в коробке было...

Ссылка на сообщение
Поделиться на других сайтах
30 минут назад, uacity сказал:

Фактически каждый дом получается индивидуальный... Что б что то понять, при проблеме, необходимо точно знать в каком подьезде или коробке и какой делитель стоит... Точно знать откуда и какой абонент подключен... При повреждении волокна нужно его или вытянуть или пройти по всему маршруту и как то проверять.. исправить (заварить, доварить и т.д..) потом по новой проложить и т.д. . Это занимает много времени... Только имея точный план на руках, можно, что то решать.

Для таких целей должна быть схема.

30 минут назад, uacity сказал:

При повреждении между этажами жгута кабелей... решение проблемы будет в разы сложней.... учагадать по одинаковым огрызкам, что к кому идет не просто.... Сварить между собой тоже совсем не просто...

В чем проблема если абоны включены с одного и того же делителя в подъезде, даже если перепутал абон все равно заработает это аварийный вариант,а потом разбератся будеш. Единственное надо отделить магистраль если она идет таким же кабелем.Но для этого есть источник видимого света ( в простонародье указка или красный свет и т.д.).  Ну сварка между собой это не большая проблема FTTH стриппер+гильза+сварочный (немного мату от сварщика каие все п**арасы и все норм).

 

30 минут назад, uacity сказал:

У нас же любой дом стандартный, мы используем два варианта при строительстве...

В любом доме монтажник, даже абсолютно новый сразу же сориентируется.

Вот тут я с Вами полностью согласен. Но так как у Вас направленность изначально на многоэтажки у Вас выбрана технология под эти цели, а мы изначально занимаемся частным сектором и многоэтажки у нас раз два и обчелся и перспектив в этом секторе нет . Поэтому лепим как могем по Вашей технологии получится слишком накладно и не очень практично в нашем случаее.  

Відредаговано max_m
Ссылка на сообщение
Поделиться на других сайтах
3 минуты назад, max_m сказал:

мы изначально занимаемся частным сектором и многоэтажки у нас раз два и обчелся и перспектив в этом секторе нет . Поэтому лепим как могем по Вашей технологии получится слишком накладно и не очень практично в нашем случаее.  

 

Частный сектор мы строим и побольше, чем многоэтажные дома...
 

Я не согласен, что наш вариант накладный и не практичный))).

  1. Я специально выше взял не абстрактный дом, а конкретный и на нем все расписал и материалы и время. Хотел, что б вы могли сравнить и по цене и по затратам времени.
  2. Вы считаете сиюминутные затраты, на подключение одного абонента. Но подключение даже 10 абонентов..уже врядли будет сильно дешевле чем у нас весь дом...
  3. Вы не учитываете затраты на оплату труда монтажников.
  4. И про практичность... Фотки покажете коробки с 10 абонентами..просто интересно как вы ее обслуживаете???
Ссылка на сообщение
Поделиться на других сайтах
3 минуты назад, uacity сказал:

И про практичность... Фотки покажете коробки с 10 абонентами..просто интересно как вы ее обслуживаете???

Да показывать особо не чего, но как будет бригада на подключке в одном из домов попрошу сфоткать.  

Ссылка на сообщение
Поделиться на других сайтах
  • 1 month later...

Доброго дня, не подскажете актуальные цены на кабель со свободным волокном и транспортные трубки, мне предложили 8-17.5, 12-24.7, 16-31.6, 24-37.2 за кабель и 2.6 грн/м трубки, , а при таких ценах проще гнать диэлектрик а каждый этаж там ставить бокс и растягивать абонентов одноволоконным 3мм кабелем на 657 волокне.

Не прошу рекламы, просто сориентируйте по цене.

Хотелось бы завести кабель, на каждом этаже, вывести необходимое количество волокон, загнать их в трубки и оконечить у абонентов в розетках, без использования промежуточных боксов/сварок/соединений.(да вытаскивать из кабеля 20 метров волокна)

Ссылка на сообщение
Поделиться на других сайтах

Создайте аккаунт или войдите в него для комментирования

Вы должны быть пользователем, чтобы оставить комментарий

Создать аккаунт

Зарегистрируйтесь для получения аккаунта. Это просто!

Зарегистрировать аккаунт

Вхід

Уже зарегистрированы? Войдите здесь.

Войти сейчас
  • Зараз на сторінці   0 користувачів

    Немає користувачів, що переглядають цю сторінку.

  • Схожий контент


×
×
  • Створити нове...